c.d. aranżacji kuchni

ach, tygodnie mijają... nic się nie dzieje, więc pracuję nad kolejnymi wersjami aranżacji kuchni. Bardzo zależy mi na tym aby zmieścił się w niej stół, ale życie pokaże czy da się go tam wcisnąć czy nie :)

ach, tygodnie mijają... nic się nie dzieje, więc pracuję nad kolejnymi wersjami aranżacji kuchni. Bardzo zależy mi na tym aby zmieścił się w niej stół, ale życie pokaże czy da się go tam wcisnąć czy nie :)
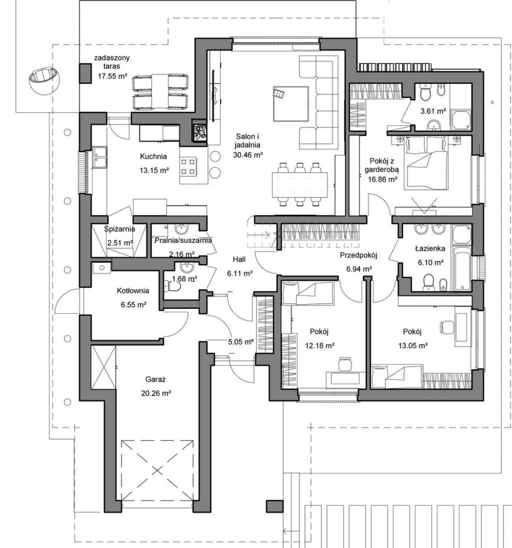
Witam po tygodniowej przerwie. Spotkanie z architektem przebiegło bardzo sprawnie. Jak wcześniej wspominałam nie planowaliśmy wielkich zmian w projekcie, więc dyskusje dotyczyły niemalże wyłącznie wielkości okien i ich położenia. Zmianą, której wcześniej nie braliśmy pod uwagę, a wydała nam się genialna jak tylko architek nam ją zaproponował jest zrównanie drzwi wejściowych z frontową ścianą. Zyskamy tym samym ok.2m2 przestrzeni w wiatrołapie.

W kuchni podniesiemy okno, aby móc swobodnie korzystać ze zlewozmywaka. Okna w małych sypialniach zamieniliśmy na takie o standardowych wymiarach z parapetami na standardowej wysokości. Dodaliśmy okno w łazience przylegającej do trzeciej sypialni i zmienilismy wymiary tego w większej łazience (oba będą miały 90x90cm). Drzwi balkonowe z trzeciej sypialni zamienilismy na normalne okna.
Zniknęła sciana z drzwiami oddzieląjąca strefę dzienną od nocnej i pożegnaliśmy się z drzwiami od kotłowni.
I tyle :)
PS. Mam nadzieję, że niebawem będę mogła podzielić się projektem antresoli.
Rozważane zmiany zaznaczyłam na czerwono gdy coś usuwałam, przemieszczałam lub dodawałam.
W "małżeńskiej" sypialni zastanawiamy się nad osobnym wejściem do łazienki, aby zyskać więcej przestrzeni w garderobie (niestety kosztem ściany, pod którą najlepiej byłoby postawić łóżko - stawiamy przy tym duży znak zapytania - czy warto?). W tej samej sypialni na 90% zamieniamy drzwi wychodzące do ogrodu na zwykle okno i planujemy dodać okno w przylegającej do pokoju łazience.
W kolejnych dwóch sypialniach prawdopodobnie zamienimy okna na standardowe (w projekcie parapety w tych pokojach są na wysokosci 65cm a okna mają rozm.220/180) i chyba przeniesiemy okno z narożnej sypialni na ścianę frontową domu. Dodatkowo pogrubimy ścianę ( styropian + płyta g-k) od strony łazienki aby ją wygłuszyć.
W kotłowni planujemy zrezygnować z drzwi zewnętrznych.
Oczywiście nie byłabym sobą gdybym "przy okazji" nie zajęła się wstępną aranzacją kuchni i salonu :) Fantastyczna zabawa!

W środę otrzymaliśmy długo oczekiwane 2kg (dosłownie) projektu architektoniczno-budowlanego domu jednorodzinnego wolnostojącego "DOMIDEA 2 paliwo stałe LUSTRO". Niby projekt z gatunku gotowych, ale koncepcyjny, czyli w praktyce oznacza to tyle, że zamiast 2 dni czekaliśmy na niego 2 mc. Warto było tyle czekać, a im dłużej się jemu przyglądamy, tym mniej mamy ochoty cokolwiek w nim zmieniać. Drobne zmiany jednak będą, ale na poczatek przedstawię wersję oryginalną.

Komentarze